Suche verändern

***VERGEBEN*** TOP Gelegenheit- Nachbar der technischen Universität Inffeld!


Objekt Nr.:760185
Objektgruppe:Wohnungen
Objektart:WOHNUNG
Kauf/Miete:Kauf
Status:Sofort beziehbar
Lage
Strasse:Sandgasse 47
PLZ:8010
Stadt:Graz

Energieausweis Energieklasse C. Alle Angaben sind ca. Angaben. Irrtümer und Änderungen vorbehalten. Alle Preisangaben (z.B. Kaufpreise, Mietpreise) sind exkl. Nebenkosten und Maklerhonorar. Die angegebenen Maße verstehen sich als Nutzfläche und sind in ca. angegeben!
Objektdaten
Preis auf Anfrage
Wohnfläche:45 m2
Nutzfläche:50 m2
Balkon- Terrassenfläche:5 m2
Kellerfläche:3 m2
Anzahl Zimmer:1
Anzahl Schlafzimmer:1
Anzahl Badezimmer:1
Anzahl Wc:1
Anzahl Balkone/Terrassen:1
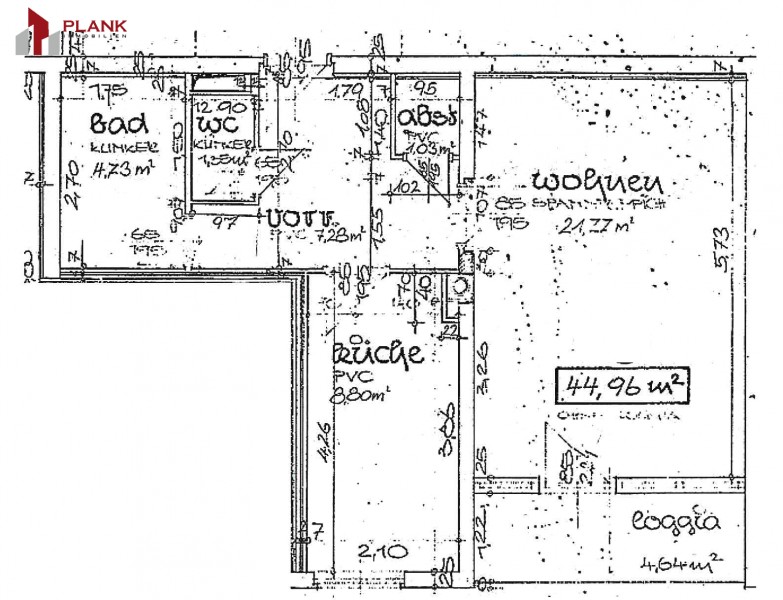
Beschreibung
Werden Sie quasi zum Nachbarn des TU-Graz-Campus Inffeldgasse! Diese sehr gut geschnittene Wohnung befindet sich in der Sandgasse, nur wenige Schritte vom Campus Inffeld der TU Graz entfernt. Die Wohnung bietet sich ideal für Studierende, zum Eigenbedarf oder auch als Anlageobjekt an. Durch die durchdachte Raumaufteilung ist es möglich, eine 2-Zimmer-Wohnung daraus zu gestalten: eine offene Küche mit Wohn- und Essbereich samt Balkon sowie ein Schlafzimmer. Die Wohnung ist sofort beziehbar. Die Beheizung erfolgt über Fernwärme. Raumaufteilung: Vorraum, WC, Badezimmer mit Wanne, Abstellraum, Küche mit Essbereich, Wohn-/Schlafzimmer mit Balkon. Parkmöglichkeiten stehen auf der Allgemeinfläche zur Verfügung. Für eine Besichtigung der Wohnung stehen wir Ihnen gerne zur Verfügung!
Lage
Sandgasse neben TU Inffeld!
Baujahr:1979
Heizung:Fernwärme
Die Vermittlung der Immobilien ist nach den Bestimmungen des Maklergesetzes provisionspflichtig.
Kontaktperson
Hr. Plank Peter
Email:pp@plankimmo.at
Tel.:0664 / 88 511 585


Expose drucken
Expose versenden